保溫系統是采用阻燃型,一面帶有凹凸型齒槽的聚苯板作為現澆混凝土外墻的外保溫材料,保溫板用專用保溫釘與墻體錨固它的安裝方式是:當外墻鋼筋綁扎完畢后,即在墻體鋼筋外側安裝保溫板,保溫板垂直邊高低槽之間用苯板膠粘結,保溫板用專用塑料保溫釘連接,它既是保溫板與墻體鋼筋的臨時固定措施,又是保溫板與墻體的連接措施。然后安裝墻體內外模板,澆灌混凝土完畢后,保溫層與墻體有機的結合在一起,拆模后在保溫板表面抹防裂砂漿外做裝飾飾面層。
二、外墻保溫現澆施工工藝
墻基→彈線→用木方找平保溫底面標高線→在聚苯板上彈出插接栓位置線→按設計位置在板上插孔→固定膠結聚苯板(墊水泥墊塊形成鋼筋保護層)→插入保溫釘→聚苯板安裝質量驗收→固定模板→燙湯穿墻螺栓孔→合模在模板上口或門窗洞口處將聚苯板支頂到模板上→澆筑混凝土→拆模→聚苯板面層初步清理對漏裝→邊角及門窗洞口處聚苯板進行裁切修補處理→抹防水水泥砂漿→膨脹縫塞填發泡聚乙烯圓棒填嵌縫膏→養護→驗收。
三、插接栓安裝及數量
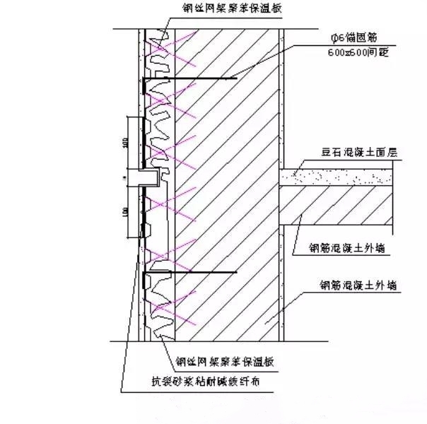
拼裝保溫板:保溫板就位后,有網系統用“L”筋固定(L筋,¢6,長150mm,彎勾長30mm,間距500mm穿過保溫板部分刷防銹漆兩道)無網系統用帶圓盤的塑料錨固釘固定;用火燒絲將其與鋼絲網、塑料釘及墻體鋼筋綁扎牢固。保溫板拼縫處附加200mm 寬平網(平網可以在澆完混凝土墻后抹灰前附加)用于面磚插接栓中距300*350,涂料飾面時:1-7層400*450, 8-14層350*400,15層以上300*350聚苯板安裝完畢后,在板的豎縫處用專用塑料卡釘將兩塊聚苯板連接在一起,間距600,并將塑料卡釘固定在鋼筋上。綁扎時應注意聚苯板底部應綁扎緊一些,使底部內收3~5mm,使拆模后的聚苯板底部與上口平齊。首層的聚苯板應控制在同一水平線上,使上面的聚苯板縫隙嚴密和垂直。
安裝時注意板縫拼接嚴密,板面平整,下料切鋸平直,裁剪得當。保溫板除層間拼縫外,不得出現水平拼縫,豎向拼縫上下一致,找補板的寬度不得小于600mm。
四、板縫拉結
保溫板外側低碳鋼絲網片均按樓層層高斷開,互不連接。沿板拼縫方向每600mm用150×150“U”型8#鉛絲穿過縫兩側保溫板同墻內鋼筋綁扎牢固。
1、注意事項
增設網片:對外墻陽角、窗洞口等應力集中部位增設角網、平網。角網的寬度以拼角(拼縫)兩側不小于2個完整網格為標準。窗洞側邊的附加角網必須貼緊洞口模并與四周附加筋綁扎固定,窗口四角設置的45度平網寬200mm,長400mm。
保溫板安裝時及時清理聚苯泡沫碎片,防止聚苯泡沫碎片堆積在施工縫處,防止爛根。
門窗洞口處容易漏漿,需粘貼雙面海綿條。
2、殊部位施工方法見
無網體系塑料錨固件平面布置圖此圖僅供參考


網現澆系統說明:
1、現澆混凝土外墻
2、EPS單面鋼絲網架
3、摻外加劑的水泥砂漿厚抹面層
4、鋼絲網架
5、飾面層
6、Æ6鋼筋
五、模板安裝
應采用鋼質大模板,按保溫板厚度確定模板配制尺寸、數量。在安裝外墻外側模板前,須在現澆混凝土墻體的根部或保溫板外側采用可靠的定位措施,以防模板擠靠保溫板,模板放在三角平臺架上,將模板就位,穿螺栓緊固校正,連接必須嚴密、牢固,以防止出現錯臺和漏漿現象。
在安裝外墻外側模板前,擠塑板安裝完畢須對鋼筋墻處的雜物或擠塑板散落碎屑進行吹倉清理,安裝墻體模板時,外模必須固定牢固,且不得嚴重擠壓塑板。外模需擦拭干凈,不得涂抹任何脫模劑或溶劑性產品。注:模板安裝或下落時不得緊貼擠塑板,防止模板下邊緣將插接栓刮掉,造成聚苯板破損。
將模板就位,穿螺栓緊固較正,連接必須嚴密、牢固,以防止出現錯臺和漏漿現象。不得在墻體鋼筋底部置定位筋,宜采用模板上部定位。
六、 混凝土澆筑
現澆混凝土頂板的坍落度應控制在140mm±20。現澆混凝土墻的塌落度應≥180mm。墻體混凝土澆灌前,保溫板頂面必須采取遮擋措施,混凝土應分層澆注,高度控制在500mm,混凝土下料點應分散布置,連續進行,間隔時間不超過2小時。
七、模板防止漏漿措施
頂板在澆筑混凝土時,在墻體根部200mm 范圍內用鋁合金刮杠找平、壓光,平整度不得超過2mm。大模板安裝時直接放在板面上,個別板面不平處,用砂漿鋪平。
角模與平模接縫處拼縫在1-2mm 左右,并用海綿條粘貼。洞口模板四周粘貼一圈海綿條。頂板模板與墻體模板與墻體之間用方木頂緊,方木與墻體之間粘貼海綿條。
八、模板拆除
在常溫條件下,墻體混凝土強度不低于1.0MPa,冬期施工墻體混凝土強度不低于7.5MPa 及達到混凝土設計強度標準值的30%時,才可以拆除模板,拆模板時應以同條件養護試塊抗壓強度為準。
先拆外墻外側模板,再拆外墻內側模板。并及時修整墻面混凝土邊角和板面余漿。穿墻套管拆除后,混凝土墻部分孔洞應用干硬性砂漿捻塞,保溫板部位孔洞應用保溫材料堵塞,其深度應進入混凝土墻體≥50mm。
九、混凝土養護
常溫施工時,模板拆除后12 小時內噴水或用養護劑養護,不少于七晝夜,次數以保持混凝土具有濕潤狀態為準。冬期施工時應定點、定時測定混凝土養護溫度,并做好記錄。
十、成品保護
1、塔吊在吊運物品時要避免碰撞保溫板;
2、首層陽角在脫模后,及時用竹膠板或其它方法加以保護,以免棱角遭到破壞;
3、外掛架下端與墻體接觸面必須用板墊實,以免外掛架擠壓保溫層。
4、安裝外墻鋁單板預埋件時,必須先彈好位置線,用電烙鐵或鋼筋頭燒熱后對準埋件錨固點燙穿聚苯板 ,嚴禁直接插入。
5、架桿在搭設、拆除時注意避免碰撞保溫板。
6、門窗、外墻鋁單板安裝時嚴禁碰撞保溫板。
7、砼澆筑時,安排專人負責看管保溫板上啟口,嚴禁振動棒直接碰撞保溫板。
