二、粘結砂漿拌制 保溫系統所用材料為成品材料,因此,對于專用粘結劑(抹面砂漿)的要求如下(由于拌制專用粘結劑的要求較高,因此必須進行專人負責拌制): 1、粘結抹面砂漿組成材料為干粉和水,干粉進場后,以重量比4:1(干粉:水)的比例進行攪拌均勻,靜止5分鐘后再次攪拌半分鐘即可使用。 2、氣溫在30度以下時拌制完畢的材料必須在30-40分鐘內用完,30度(包括30度)以上時拌制完畢的材料必須在15-20分鐘內用完。
三、保溫板的鋪貼 在粉刷施工完畢之后,開始進行苯板的鋪貼。 1、苯板鋪貼前需要進行以下準備工作: 吊線:在一操作層的鋪貼起始面沿墻面四周彈出水平線。在底部安裝鋁托架,安裝時請用水平儀。
2、考慮到在粘結劑未干前保溫板沒有足夠的承載力,因此苯板的鋪貼順序應該從下往上進行施工,鋪貼時還必須采用靠尺進行施工,以保證平整度要求。 3、板的排列:要求自墻面底部起橫排布板,逐塊粘貼,每排按順序依次粘貼,排與排之間錯縫粘貼,外轉角也應錯縫。每一排的板與板間接縫要錯開1/2板長,苯板最小長度應保證在200㎜以上(包括200㎜)。所有保溫板之間的縫隙不能超過1.5mm。
4、保溫板的粘貼: (1)控制粘結劑用量,方齒抹灰刀成約45º角刮過,拉出灰條,寬大約5cm。 (2)粘結劑的涂抹面積應大于整板面積的40%。 (3)粘貼應盡量擺正位置,若有所偏差可滑動就位,粘貼應輕柔,用工具拍壓緊貼墻面(嚴禁用手拍擊),并使用2米以上靠尺來測量,確保平整,保溫板粘貼應該盡可能靠緊,接縫盡可能小。 條粘法:采用條粘與點粘相結合的方法,即苯板四個邊采用條粘,寬度為50㎜,中間另行布置幾個點,直徑大等于100㎜。苯板四側不得留有粘膠,周圍擠出的粘膠必須立即刮掉,保證保溫板的側面縫隙沒有留有粘膠。 點粘法:采用點粘法,對于整板共布置16個點(頂排6個點,下兩排各為5個點),粘結劑厚度控制在6㎜左右,直徑在150㎜左右。(4)粘貼應盡量擺正位置,若有所偏差可滑動就位,粘貼應輕柔,用工具拍壓緊貼墻面(嚴禁用手拍擊),并使用2米以上靠尺來測量,確保平整,保溫板粘貼應該盡可能靠緊,接縫盡可能小。
5、縫隙修補:保溫板的尺寸偏差造成的縫隙(大于1.5mm寬)應該用條形保溫材料密封住。
6、打磨:在苯板鋪貼完畢后,間隔24小時進行打磨。 用美工刀割去凸出于墻面部分,然后用打磨板磨去板縫處的不平整;使用2米以上靠尺進行檢查,使整個保溫墻面的平整度不超過4mm/2m。打磨時散落的聚苯板屑應隨時用刷子、掃把或壓縮空氣清理干凈。
7、苯板斷開處或收口的地方均采用密封膠封閉。
四、加固層的施工 1、施工前應先檢查苯板是否干燥,清潔。
2、將整個墻面使用粘結抹面砂漿進行滿批打底。 3、在粘結抹面砂漿沒有凝固之前將耐堿網格布抹入粘結抹面砂漿中
4、粘結抹面砂漿應充分的把網格布包裹,但網格布應盡量靠近加固層的表面約2/3處。具體以看不見網格布顏色而看得見網格布格子的標準來控制施工質量(意思就是網格布外層的粘接劑越少越好,壓入網格布或外層的粘接劑上完后用2米刮刀在外表面刮平整既可)。此工序強調相互配合,一氣呵成。
5、耐堿玻璃纖維網格布不管上下左右,接頭處均應保證搭接10cm寬度。 6、加固層中粘結抹面砂漿的厚度為3㎜左右。為了防止加固層的開裂,不能使加固層和飾面層過厚來掩蓋保溫板的不平整。 7、在常溫下,干燥一天后即可進行飾面層的施工。低溫及高濕環境下干燥時間可能會延長至2天。 8、若遇到高溫天氣,粘結抹面砂漿在終凝后可對其表面灑水潤濕養護,以防其表面失水過快而產生毛細裂縫。
9、必須先上膠再埋網,嚴禁邊鋪網邊上膠。 10、當遇到門窗洞口時,應在洞口四角處沿45度方向補貼一塊標準網格布長30*20cm,以防開裂。而且,此步驟應在大面積鋪設之前完成。門窗處和接口處需要使用丙烯酸密封膠灌注防水。 11、粘結劑滿批后達到墻面平整,完成后若有不平整處,則在間隔6-8小時后進行打磨平整,以成為合格的涂料基層。 12、建筑底層需要再鋪設一層加強型網格布,以保護受撞擊的墻體。
五、交下道工序施工
由總包方、監理、甲方、保溫施工方、涂料(或文化石)施工方共同確認。
六、其他施工注意事項
1、面層材料為文化石,EPS保溫板應選用25kg/m3的板材,在打磨完畢后,進行打設錨固釘,錨固釘的打設數量確定為每平米不少于6個。錨固釘打設應當凹進苯板1-2㎜,不得突出板面。錨固釘打設完畢后,需要立即跟進對錨釘圓盤面進行抹平,使用材料為粘結抹面砂漿。
2、在門窗洞口四個角粘貼保溫板時,不應在角上有板縫,應用整板裁掉一個缺口的方法粘貼。
3、在陽角處粘貼保溫板時,寧可使其超出墻面一定距離(2cm左右),等今后保溫板全部貼完后,統一彈線后切割并打磨平整。
4、整個保溫系統對干燥度要求較高,保溫系統施工過程中若遇到下雨天氣,必須使用彩條布等其他材料進行防雨。若遇到完成后不到兩天即有下雨的情況,在施工操作層范圍內也必須同樣處理。
5、保溫施工前應預留好所有出墻管的準備工作,如落水管的固定釘等。
6、保溫系統施工過程中,每結束一層即進行保溫專項驗收,由保溫施工方、監理、甲方及總包方共同確認。
相關做法及細部節點
一、保溫系統結構示意圖
1、有錨釘系統:
2、無錨釘系統:
二、苯板排列示意
三、粘結劑粘貼形式
四、苯板錨釘安裝示意圖

五、陰陽角處網格布的鋪貼
1、方案一:


六、陽臺根部處理


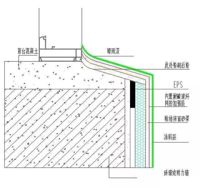
2、窗臺不做保溫的做法

窗邊收頭

八、門窗洞口收頭節點


九、出墻洞口節點做法示意

穿墻管在保溫板粘貼前施工完畢。保溫板粘貼完畢,由保溫收頭

十、滴水線做法示意


十二、陽臺欄桿橫桿固定處示意圖 鐵藝欄桿在保溫板粘貼前,將預埋件固定在墻上,欄桿焊接好,由保溫修補。

十三、裝飾線(腰線)節點做法處理

十四、立面底部保溫做法示意


十五、保溫線條的粘貼

朝欽銷售電話:15515566835
本文網址:http://m.dorabee.cn/baike/n311.html
